Description
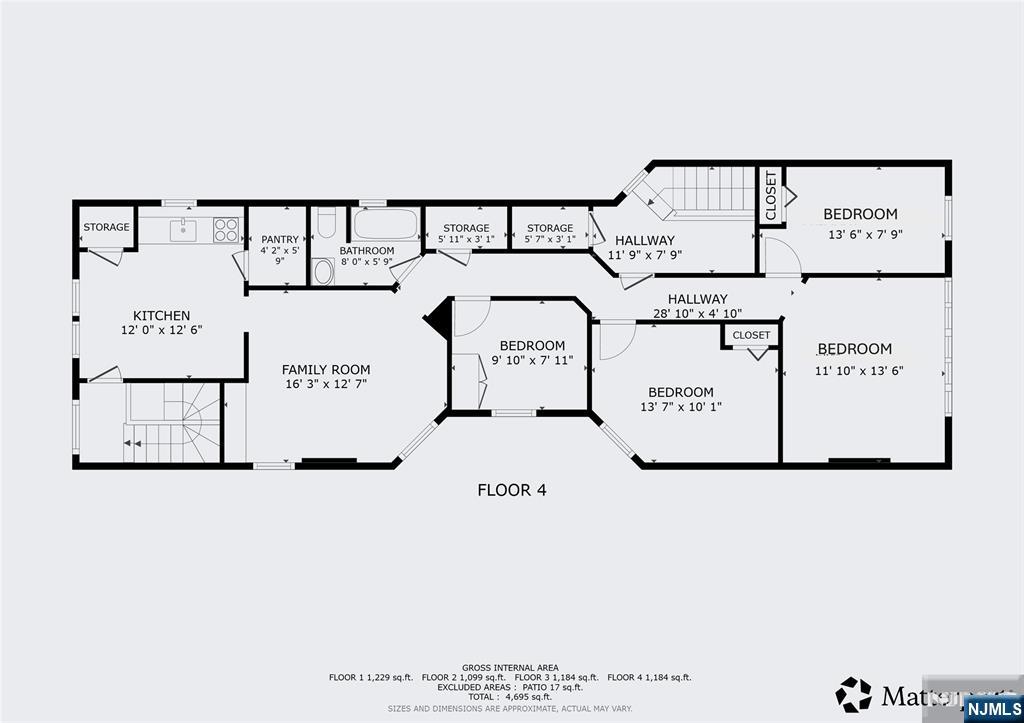
Mixed-Use Building: Taxes 10,713 Lot 24x105 offers both commercial and residential income opportunities. The first floor retail unit previously occupied by a pharmacy, making it an excellent opportunity for a variety of potential businesses. The 2nd and 3rd floors each include large, residential apartments ?with 4 bedrooms ?& 1 bathroom. (Note: one bedroom does not include a closet.) These units offer high ceilings, generous layouts, ?& both front and rear stair access. Separate utilities. Unfinished basement offering storage. Building upgrades completed in 2006, including updated electrical systems and central air. The property is being sold as-is, presenting a fantastic opportunity for an investor or owner-occupant to add value and maximize income. Store Rent Potential $2,500 - $3,000 unit - Total 4,700 sq ft (+/-) Basement is 1,229 sq ft Retail Floor is 1,099 Sq ft - 2nd Floor Unit is 1,184sqft, 3rd Floor Unit is 1,184 sq ft (SQ FT Measurement calculated by the Matterport System and should be approx.)
Location
Listed By
Similar Listings
No similar listings found
Unfortunately, we don't have any similar listings at the moment. Please remove or change some of the selected filters.

The data relating to the real estate for sale on this web site comes in part from the Internet Data Exchange Program of the NJMLS. Real estate listings held by brokerage firms other than Rosa Agency Realtors are marked with the Internet Data Exchange logo and information about them includes the name of the listing brokers. Some properties listed with the participating brokers do not appear on this website at the request of the seller. Listings of brokers that do not participate in Internet Data Exchange do not appear on this website. All information deemed reliable but not guaranteed. Source: New Jersey Multiple Listing Service, Inc. New Jersey Multiple Listing Service, Inc. All rights reserved. Updated: 21st April, 2026 11:26 AM (UTC)
Listing Agent: Tina R. Torres
Listing Office: RE/MAX Lifetime Realtors





